Special Exhibition Gallery, Museum of Science and Industry
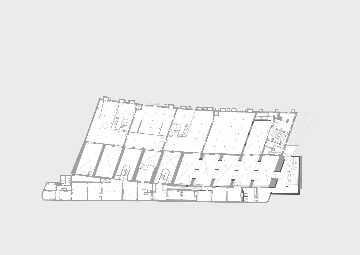
This project comprises of the refurbishment and adaptation of a Grade I listed railway station, warehouse and railway viaduct, with the addition of a new temporary exhibitions gallery and public entrance hall. These improvements will allow the Museum to expand its ability to host major exhibitions.
Part of the Science Museum Group, The Museum of Science and Industry is situated on the site of the world's oldest surviving passenger railway station. The Museum is a globally important heritage site comprising some of the most important buildings of the modern industrial age.
The project was won in open-international competition.
Museum of Science and Industry website
Client: Museum of Science and Industry
Location: Manchester
Model photography: Richard Davies
Renders: Forbes Massie
Historic image: The site in 1978, prior to the opening of the Museum (Source: Manchester Picture Archive)